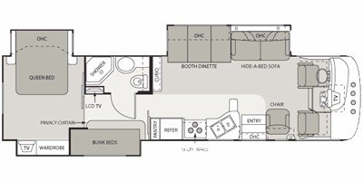
2008 Four Winds Magellan 36F
2008 Four Winds Magellan 36F pictures, prices, information, and specifications.
{
"id": "",
"alt": null,
"title": null,
"video_link": "https://www.youtube.com/embed/SEFF1yrV3FE",
"youtube_video_id": "SEFF1yrV3FE"
}
{
"width": 634,
"height": 357,
"showRelated": true
}